CAD迷你家装使用技巧
这款软件如同CAD插件,能快速绘制房屋平面图,让你在装修前自行设计布局。它不仅可快速完成装修设计图,还添加了预算功能等,方便实用。
1、 画出轴线:
2、 启动软件后,左侧导航栏包含几乎所有功能。先选用墙体房间中的绘制轴线工具,根据实际房屋尺寸绘制轴线,确保精准布局,为后续操作打好基础。


3、 墙壁绘画:
4、 接着选择绘制墙体功能,依据上图轴线绘制房屋墙体,自动捕捉轴线以完成墙体绘制。

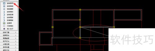
5、 画出门窗:
6、 在图示位置选择绘制门窗功能,根据软件提示操作,按房屋实际尺寸绘制门窗,确保准确无误。

7、 楼梯通往阳台
8、 点击图中楼梯阳台位置,根据实际面积绘制楼梯阳台。通常家里用不到楼梯,除非是别墅或复式建筑。

9、 房间装潢设计:
10、 接着,针对房间布局、厨电卫浴、地板墙面、家具等功能,选择你喜欢的装修风格。这里配有图库,按提示添加即可完成设计。



11、 设计完成后,点击左侧导航栏的快速预算,按提示选择对应房间,再点击预算清单查看软件生成的预算报表。若需添加更多内容,可点击继续测量进行操作。

文章标题:CAD迷你家装使用技巧
文章链接://www.hpwebtech.com/jiqiao/323830.html
为给用户提供更多有价值信息,ZOL下载站整理发布,如果有侵权请联系删除,转载请保留出处。
其他类似技巧
- 2025-03-30 15:18:01CAD迷你家装如何设置测量数值标注在图纸上
- 2025-03-30 07:47:01CAD迷你家装如何设置自动备份间隔时间
- 2025-03-28 11:50:01CAD迷你家装如何设置开启布局空间
- 2025-03-28 09:35:01CAD迷你家装如何设置输出图片清晰度
- 2025-03-27 16:56:01CAD迷你家装如何设置输出打开图纸线宽
- 2025-03-27 15:31:01CAD迷你家装如何设置开启专业打印模式
- 2025-03-27 10:49:01CAD迷你家装如何设置标注精度
- 2025-03-26 19:43:03CAD迷你家装如何设置光标大小
- 2025-03-26 11:45:02CAD迷你家装如何设置图纸背景颜色
- 2025-03-26 10:47:02CAD迷你家装如何设置输出线条颜色
CAD迷你家装软件简介
CAD迷你家装是一款快捷方便的电脑版DWG画图工具,CAD绘图软件虽然小巧灵活,但它功能强大。相比传统的CAD而言,兼容DWG各版本格式和快捷命令的CAD迷你家装,可以大幅提高家装设计的效率,设计师们的画图工具,也可作为家装的实用工具,赶快来下载吧。软件特色1、CAD迷你家装支持多窗口、极速浏览DWG图纸2、支持并兼... 详细介绍»





