浩辰CAD看图王的操作界面怎么使用?
浩辰CAD看图王手机版具备命令面板、放大镜等功能,便于绘图与测量操作,还支持根据个人习惯调整软件设置。
1、 打开图纸,点软件右上角三点按钮,进入设置,可调整命令面板、放大镜等功能选项。

2、 指令面板
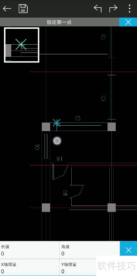
3、 调用绘图功能时,例如绘制直线、圆或矩形,会弹出命令面板。在此面板中可输入角度、长度、坐标等参数以完成操作。
4、 取消该选项后,命令面板不会自动弹出,仅在点击对应数字时出现。这种设置适用于按捕捉点绘制且无需手动调整参数的情形。


5、 仿若鼠标般
6、 启用模拟鼠标功能后,单指长按屏幕捕捉时,捕捉点会显示在手指上方,而非按压处,以免手指遮挡捕捉点,便于查看。

7、 放大镜
8、 测量或绘图时,单指长按屏幕,软件左上方会出现一个方框,显示所点位置的图纸放大细节,此设置用于调整放大镜的大小与位置。

文章标题:浩辰CAD看图王的操作界面怎么使用?
文章链接://www.hpwebtech.com/jiqiao/332242.html
为给用户提供更多有价值信息,ZOL下载站整理发布,如果有侵权请联系删除,转载请保留出处。
相关软件推荐
其他类似技巧
- 2025-04-05 14:51:01如何使用浩辰CAD看图王来打开dwg图纸的压缩包?
- 2025-04-05 12:44:01浩辰CAD看图王如何开启多段线线宽
- 2025-04-05 10:49:01浩辰CAD看图王软件如何才能使标注字体变大
- 2025-04-05 10:26:01浩辰CAD看图王怎么更换为黑色背景?
- 2025-04-05 10:09:02如何使用浩辰CAD看图王来新建图层?
- 2025-04-05 09:29:01浩辰CAD看图王如何正确绘制虚线
- 2025-04-05 09:08:01如何使用浩辰CAD看图王来自定义工具栏?
- 2025-04-05 08:11:01浩辰CAD看图王的操作界面怎么使用?
- 2025-04-05 08:03:02如何使用浩辰CAD看图王来进行线性标注?
- 2025-04-05 07:33:01浩辰CAD看图王网页版常用功能介绍
浩辰CAD看图王软件简介
浩辰CAD看图王是一款集2D/3D图纸浏览的CAD轻量化工具,功能齐全,性能稳定。支持dwg、dxf格式的CAD图纸,同时也打开rvt、stp、prt、SLDPRT等几十种三维图纸格式,可实现二维三维览图、轻量编辑。软件自带PDF与CAD互转、CAD转JPG等工具,提供批量打印、加密分享、测量标注、图块工具、表格处理等丰富功能。1、 内置... 详细介绍»





