浩辰CAD看图王手机版怎么给图纸标注
浩辰CAD看图王手机版是一款免费的CAD图纸查看与编辑工具。它让操作更便捷。下面我来教大家使用浩辰CAD看图王手机版为图纸添加标注的方法。
1、 首先,在手机上下载并安装浩辰CAD看图王APP。

2、 在手机上打开软件,进入主界面。

3、 打开手机CAD图纸,跳转界面后,点击弹窗中的选项,即可进入制图模式。


4、 将图纸放大至需标注处,点击下方菜单栏的选项。



5、 弹出标注选项后,点击第一个,此时界面左下角会出现对应图标。

6、 界面上方会显示指定首个尺寸界限原点,点击目标点后,界面将出现一个图标标识。


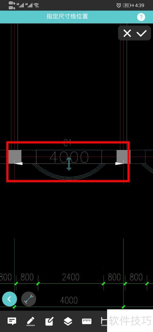
7、 界面上方会提示指定第二个尺寸界限原点,点击目标点后,尺寸标注即可生成。


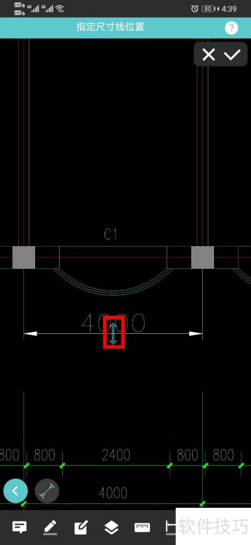
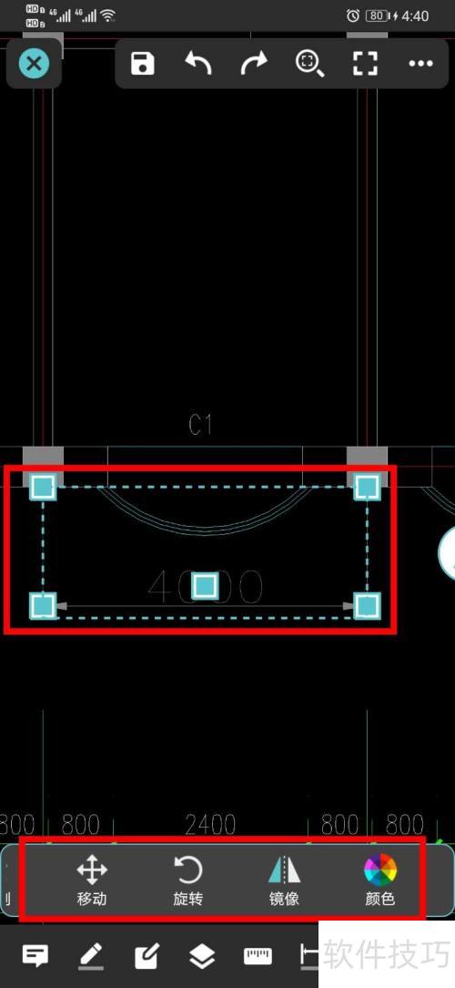
8、 调整标注位置,点击中间箭头上下滑动。完成标注后,可修改内容并保存。



文章标题:浩辰CAD看图王手机版怎么给图纸标注
文章链接://www.hpwebtech.com/jiqiao/332022.html
为给用户提供更多有价值信息,ZOL下载站整理发布,如果有侵权请联系删除,转载请保留出处。
其他类似技巧
- 2025-04-05 14:51:01如何使用浩辰CAD看图王来打开dwg图纸的压缩包?
- 2025-04-05 12:44:01浩辰CAD看图王如何开启多段线线宽
- 2025-04-05 10:49:01浩辰CAD看图王软件如何才能使标注字体变大
- 2025-04-05 10:26:01浩辰CAD看图王怎么更换为黑色背景?
- 2025-04-05 10:09:02如何使用浩辰CAD看图王来新建图层?
- 2025-04-05 09:29:01浩辰CAD看图王如何正确绘制虚线
- 2025-04-05 09:08:01如何使用浩辰CAD看图王来自定义工具栏?
- 2025-04-05 08:11:01浩辰CAD看图王的操作界面怎么使用?
- 2025-04-05 08:03:02如何使用浩辰CAD看图王来进行线性标注?
- 2025-04-05 07:33:01浩辰CAD看图王网页版常用功能介绍
浩辰CAD看图王软件简介
浩辰CAD看图王是一款集2D/3D图纸浏览的CAD轻量化工具,功能齐全,性能稳定。支持dwg、dxf格式的CAD图纸,同时也打开rvt、stp、prt、SLDPRT等几十种三维图纸格式,可实现二维三维览图、轻量编辑。软件自带PDF与CAD互转、CAD转JPG等工具,提供批量打印、加密分享、测量标注、图块工具、表格处理等丰富功能。1、 内置... 详细介绍»





